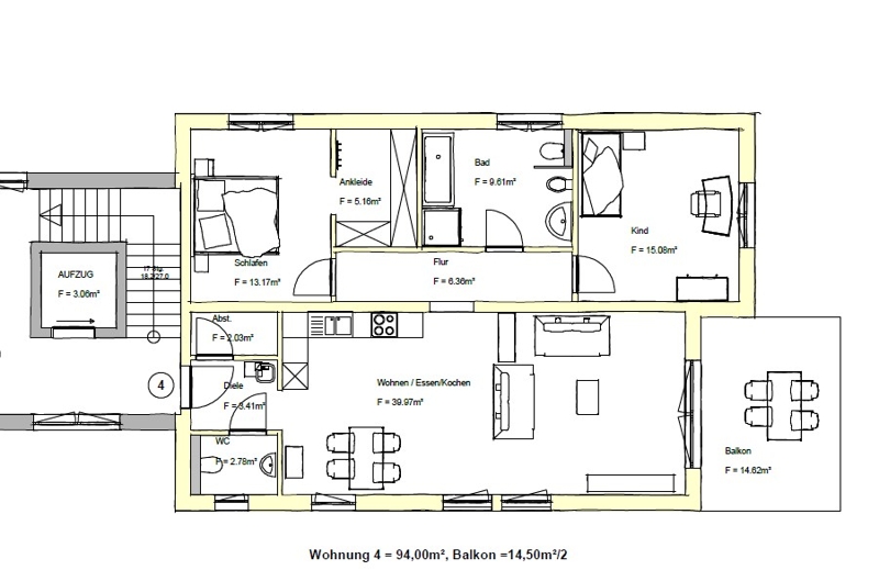
Diese erstklassige Obergeschosswohnung mit großügigem Balkon befindet sich in einem modernen, dreigeschossigen Neubau und überzeugt durch eine durchdachte und großzügige Raumgestaltung. Ein weitläufiger Wohn- und Essbereich mit offener Küche, zwei helle Schlafzimmer, das Masterschlafzimmer mit Ankleidebereich, ein hochwertig ausgestattetes Tageslichtduschbad, eine einladende Diele sowie ein separates Gäste-WC schaffen ein Wohnambiente auf gehobenem Niveau.
Das stilvolle Badezimmer besticht durch erstklassige Materialien und eine harmonische Kombination aus Design und Funktionalität. Das separate Gäste-WC bietet zusätzlichen Komfort im Alltag.
Der rund 14 m² große Balkon lädt zu entspannten Stunden im Freien ein und bietet ideale Lichtverhältnisse für sonnige Morgenstunden und freundliche Tagesabschnitte. Der Ausblick ins Grüne schafft Ruhe und eine angenehme Atmosphäre.
Im gesamten Wohnbereich sorgt hochwertiges Echtholzparkett für eine warme, edle Atmosphäre. Die mit Malervlies ausgeführten Wände schaffen eine hochwertige, zeitlose Oberflächenoptik. Energieeffiziente, qualitative Fenster mit hervorragenden Dämmwerten verleihen den Räumen ein lichtdurchflutetes und angenehmes Wohnklima.
Ein besonderer Vorteil dieser Obergeschosswohnung ist der stufenlose Zugang zum Haus und der Fahrstuhl bis vor die Wohnungstüre, der komfortable und bequeme Wege ermöglicht – ideal für alle, die Wert auf einen mühelosen Einstieg ins Gebäude legen.
Auf dem Grundstück stehen insgesamt acht Carport-Stellplätze zur Verfügung, die optional für 10.000 € erworben werden können – eine praktische und wertbeständige Ergänzung zur Wohnung.
Praktischen Stauraum schafft zudem die Teilunterkellerung, welche zusätzlichen Platz für Vorräte, Fahrräder oder persönliche Gegenstände bereithält.
Diese hochwertige Neubau-Stadtwohnung vereint zeitlose Eleganz, modernen Wohnkomfort und energieeffiziente Bauweise – ein einladender Ort, um in Grünstadt ein stilvolles und zukunftssicheres Zuhause zu genießen.
Lassen Sie sich von diesem besonderen Wohnangebot begeistern.
- Erstbezug! neue exklusive Obergeschosswohnung mit 3 Zimmern, Bad, Gäste-WC, große Terrasse
- Gäste-WC
- Abstellraum
- Boden: Parkett
- Terrasse
- Carport: 1 (Preis: 10.000,00 €)
- Unterkellert
- Heizungsart: Fußbodenheizung
- Befeuerung: Luftwärmepumpe
- Fahrstuhl im Haus
- teilunterkellert mit Fahrstuhl bis ins Untergeschoss
Das neue Mehrfamilienhaus mit insgesamt fünf exklusiven Wohneinheiten liegt in einer begehrten Wohngegend von Grünstadt, einer charmanten Stadt in Rheinland-Pfalz. Nur 600 Meter von der lebendigen Innenstadt entfernt, ist die Lage ideal für alle, die den Komfort der Stadt genießen möchten.
Eingebettet in eine malerische Umgebung, profitiert die Lage von einer ausgezeichneten Anbindung an städtische Annehmlichkeiten und infrastrukturelle Einrichtungen. In der Nähe befinden sich zahlreiche Einkaufsmöglichkeiten, Restaurants und Cafés, die den täglichen Bedarf lückenlos abdecken. Die Innenstadt von Grünstadt beeindruckt mit ihrem attraktiven Mix aus Tradition und Moderne.
Für Naturliebhaber gibt es viele Parks und Grünflächen in der Umgebung, die zu entspannten Spaziergängen und Outdoor-Aktivitäten einladen. Dank der verkehrsgünstigen Lage sind größere Städte wie Mannheim und Ludwigshafen bequem über die Autobahn erreichbar, was für Pendler von großem Vorteil ist. Auch der öffentliche Nahverkehr ist gut ausgebaut, sodass eine unkomplizierte Mobilität gewährleistet ist.
Diese Immobilie bietet eine perfekte Balance zwischen urbanem Leben und naturnahem Wohnen und ist somit die ideale Wahl für anspruchsvolle Käufer, die sowohl das Stadtleben als auch die Ruhe der Natur schätzen.
Das Objekt wird über die Firma MAKLERHAUS AM LUISENPARK im qualifizierten Makleralleinauftrag angeboten.
Sehr gerne helfen wir auch Ihnen, als Eigentümer einer privaten Immobilie oder große bis sehr große Gewerbeimmobilie/n, bei der kostenlosen und unverbindlichen Bewertung nach derzeitigem Marktwert, bei der Vermarktung sowie beim Verkauf und der damit verbundenen notariellen Beurkundung.
NUTZEN SIE UNSERE PROFESSIONELLE UNTERSTÜTZUNG.
Sie erreichen uns jederzeit per e-mail unter: info@maklerhaus-mannheim.com
Telefon: 0621/ 8324 115-0 oder Fax: 0621/ 39732-404
www.maklerhaus-mannheim.com
Wir weisen darauf hin, dass die von uns weitergegebenen Objektinformationen vom Verkäufer stammen. Eine Haftung für die Richtigkeit der Angaben können wir daher leider nicht übernehmen.
Im Fall des Kaufs der Immobilie bezahlt der Käufer eine Provision von 3,57% inkl. 19% MwSt. an das Maklerhaus am Luisenpark, Harrlachweg 1, 68163 Mannheim.
Als Immobilienmaklerunternehmen sind wir nach § § 1, 2 Abs. 1 Nr. 10, 4 Abs. 3 Geldwäschegesetz (GwG) dazu verpflichtet, vor Begründung einer Geschäftsbeziehung die Identität des Vertragspartners festzustellen und zu überprüfen. Hierzu ist es erforderlich, dass wir die relevanten Daten Ihres Personalausweises festhalten – beispielsweise mittels einer Kopie. Das Geldwäschegesetz (GwG) sieht vor, dass der Makler die Kopien bzw. Unterlagen fünf Jahre aufbewahren muss.
Unsere weiteren Angebote finden Sie auf unserer Website unter www.maklerhaus-mannheim.com
Kaufpreis
479.750 €
Außen-Provision
3,57% (inkl.19% MwSt.)
Währung
€
Baujahr
2026
Zustand
projektiert
Details zur Immobilie
Energieausweisdaten
Baujahr
2026
Zustand
projektiert
Kaufpreis
479.750 €
Außen-Provision
3,57% (inkl.19% MwSt.)
Währung
€
Beschreibung der ImmobilieDiese erstklassige Obergeschosswohnung mit großügigem Balkon befindet sich in einem modernen, dreigeschossigen Neubau und überzeugt durch eine durchdachte und großzügige Raumgestaltung. Ein weitläufiger Wohn- und Essbereich mit offener Küche, zwei helle Schlafzimmer, das Masterschlafzimmer mit Ankleidebereich, ein hochwertig ausgestattetes Tageslichtduschbad, eine einladende Diele sowie ein separates Gäste-WC schaffen ein Wohnambiente auf gehobenem Niveau.
Das stilvolle Badezimmer besticht durch erstklassige Materialien und eine harmonische Kombination aus Design und Funktionalität. Das separate Gäste-WC bietet zusätzlichen Komfort im Alltag.
Der rund 14 m² große Balkon lädt zu entspannten Stunden im Freien ein und bietet ideale Lichtverhältnisse für sonnige Morgenstunden und freundliche Tagesabschnitte. Der Ausblick ins Grüne schafft Ruhe und eine angenehme Atmosphäre.
Im gesamten Wohnbereich sorgt hochwertiges Echtholzparkett für eine warme, edle Atmosphäre. Die mit Malervlies ausgeführten Wände schaffen eine hochwertige, zeitlose Oberflächenoptik. Energieeffiziente, qualitative Fenster mit hervorragenden Dämmwerten verleihen den Räumen ein lichtdurchflutetes und angenehmes Wohnklima.
Ein besonderer Vorteil dieser Obergeschosswohnung ist der stufenlose Zugang zum Haus und der Fahrstuhl bis vor die Wohnungstüre, der komfortable und bequeme Wege ermöglicht – ideal für alle, die Wert auf einen mühelosen Einstieg ins Gebäude legen.
Auf dem Grundstück stehen insgesamt acht Carport-Stellplätze zur Verfügung, die optional für 10.000 € erworben werden können – eine praktische und wertbeständige Ergänzung zur Wohnung.
Praktischen Stauraum schafft zudem die Teilunterkellerung, welche zusätzlichen Platz für Vorräte, Fahrräder oder persönliche Gegenstände bereithält.
Diese hochwertige Neubau-Stadtwohnung vereint zeitlose Eleganz, modernen Wohnkomfort und energieeffiziente Bauweise – ein einladender Ort, um in Grünstadt ein stilvolles und zukunftssicheres Zuhause zu genießen.
Lassen Sie sich von diesem besonderen Wohnangebot begeistern.Ausstattung der Immobilie- Erstbezug! neue exklusive Obergeschosswohnung mit 3 Zimmern, Bad, Gäste-WC, große Terrasse
- Gäste-WC
- Abstellraum
- Boden: Parkett
- Terrasse
- Carport: 1 (Preis: 10.000,00 €)
- Unterkellert
- Heizungsart: Fußbodenheizung
- Befeuerung: Luftwärmepumpe
- Fahrstuhl im Haus
- teilunterkellert mit Fahrstuhl bis ins UntergeschossHier befindet sich die ImmobilieDas neue Mehrfamilienhaus mit insgesamt fünf exklusiven Wohneinheiten liegt in einer begehrten Wohngegend von Grünstadt, einer charmanten Stadt in Rheinland-Pfalz. Nur 600 Meter von der lebendigen Innenstadt entfernt, ist die Lage ideal für alle, die den Komfort der Stadt genießen möchten.
Eingebettet in eine malerische Umgebung, profitiert die Lage von einer ausgezeichneten Anbindung an städtische Annehmlichkeiten und infrastrukturelle Einrichtungen. In der Nähe befinden sich zahlreiche Einkaufsmöglichkeiten, Restaurants und Cafés, die den täglichen Bedarf lückenlos abdecken. Die Innenstadt von Grünstadt beeindruckt mit ihrem attraktiven Mix aus Tradition und Moderne.
Für Naturliebhaber gibt es viele Parks und Grünflächen in der Umgebung, die zu entspannten Spaziergängen und Outdoor-Aktivitäten einladen. Dank der verkehrsgünstigen Lage sind größere Städte wie Mannheim und Ludwigshafen bequem über die Autobahn erreichbar, was für Pendler von großem Vorteil ist. Auch der öffentliche Nahverkehr ist gut ausgebaut, sodass eine unkomplizierte Mobilität gewährleistet ist.
Diese Immobilie bietet eine perfekte Balance zwischen urbanem Leben und naturnahem Wohnen und ist somit die ideale Wahl für anspruchsvolle Käufer, die sowohl das Stadtleben als auch die Ruhe der Natur schätzen.Sonstige Angaben zur ImmobilieDas Objekt wird über die Firma MAKLERHAUS AM LUISENPARK im qualifizierten Makleralleinauftrag angeboten.
Sehr gerne helfen wir auch Ihnen, als Eigentümer einer privaten Immobilie oder große bis sehr große Gewerbeimmobilie/n, bei der kostenlosen und unverbindlichen Bewertung nach derzeitigem Marktwert, bei der Vermarktung sowie beim Verkauf und der damit verbundenen notariellen Beurkundung.
NUTZEN SIE UNSERE PROFESSIONELLE UNTERSTÜTZUNG.
Sie erreichen uns jederzeit per e-mail unter: info@maklerhaus-mannheim.com
Telefon: 0621/ 8324 115-0 oder Fax: 0621/ 39732-404
www.maklerhaus-mannheim.com
Wir weisen darauf hin, dass die von uns weitergegebenen Objektinformationen vom Verkäufer stammen. Eine Haftung für die Richtigkeit der Angaben können wir daher leider nicht übernehmen.
Im Fall des Kaufs der Immobilie bezahlt der Käufer eine Provision von 3,57% inkl. 19% MwSt. an das Maklerhaus am Luisenpark, Harrlachweg 1, 68163 Mannheim.
Als Immobilienmaklerunternehmen sind wir nach § § 1, 2 Abs. 1 Nr. 10, 4 Abs. 3 Geldwäschegesetz (GwG) dazu verpflichtet, vor Begründung einer Geschäftsbeziehung die Identität des Vertragspartners festzustellen und zu überprüfen. Hierzu ist es erforderlich, dass wir die relevanten Daten Ihres Personalausweises festhalten – beispielsweise mittels einer Kopie. Das Geldwäschegesetz (GwG) sieht vor, dass der Makler die Kopien bzw. Unterlagen fünf Jahre aufbewahren muss.
Unsere weiteren Angebote finden Sie auf unserer Website unter www.maklerhaus-mannheim.com